Modern und hell nach Sanierung mit großem Balkon ab Frühjahr
06237 Leuna, Etagenwohnung zur Miete
Kontaktdaten
-
NameFrau Anja Schneider
-
AnschriftRudolf-Breitscheid-Str. 18
06237 Leuna -
E-Mail
-
Telefon
Objektdaten
-
Objekt-IDVO: 4198
-
ObjekttypenEtagenwohnung, Wohnung
-
AdresseGaußstr. 4
06237 Leuna -
Etage1
-
Etagen im Haus3
-
Wohnfläche ca.118 m²
-
Zimmer4
-
Schlafzimmer3
-
Badezimmer2
-
HeizungsartFernwärme
-
Baujahr1928
-
Letzte Modernisierung2026
-
Zustandvollsaniert
-
AusstattungStandard
-
Haustierenach Vereinbarung
-
AußenstellplatzStellplatzmiete: 40,00 EUR (Anzahl: 1)
-
Heating Costs In Service ChargeYES
-
Kaution3.186,00 EUR
-
Kaltmiete1.062,00 EUR
-
Nebenkosten354,00 EUR
-
Heizkostenin den Nebenkosten enthalten
-
Warmmiete1.416,00 EUR
Ausstattung / Merkmale
- ✓ Balkon/Terrasse
- ✓ Garten/Gartennutzung
- ✓ Keller
Energieausweis
-
EnergieausweistypVerbrauchsausweis
-
Ausstellungsdatumnach dem 1.5.2014
-
Baujahr lt. Energieausweis1928
-
PrimärenergieträgerFernwärme
-
Endenergieverbrauch95,30 kWh/(m²·a)
-
EnergieeffizienzklasseC
Objektbeschreibung
Beschreibung
Bei dieser Wohnung handelt es sich um einen Erstbezug nach Sanierung.
Der Hauseingang Gaußstr. 4 befindet sich aktuell noch im Bau und wird ab April bezugsfertig sein.
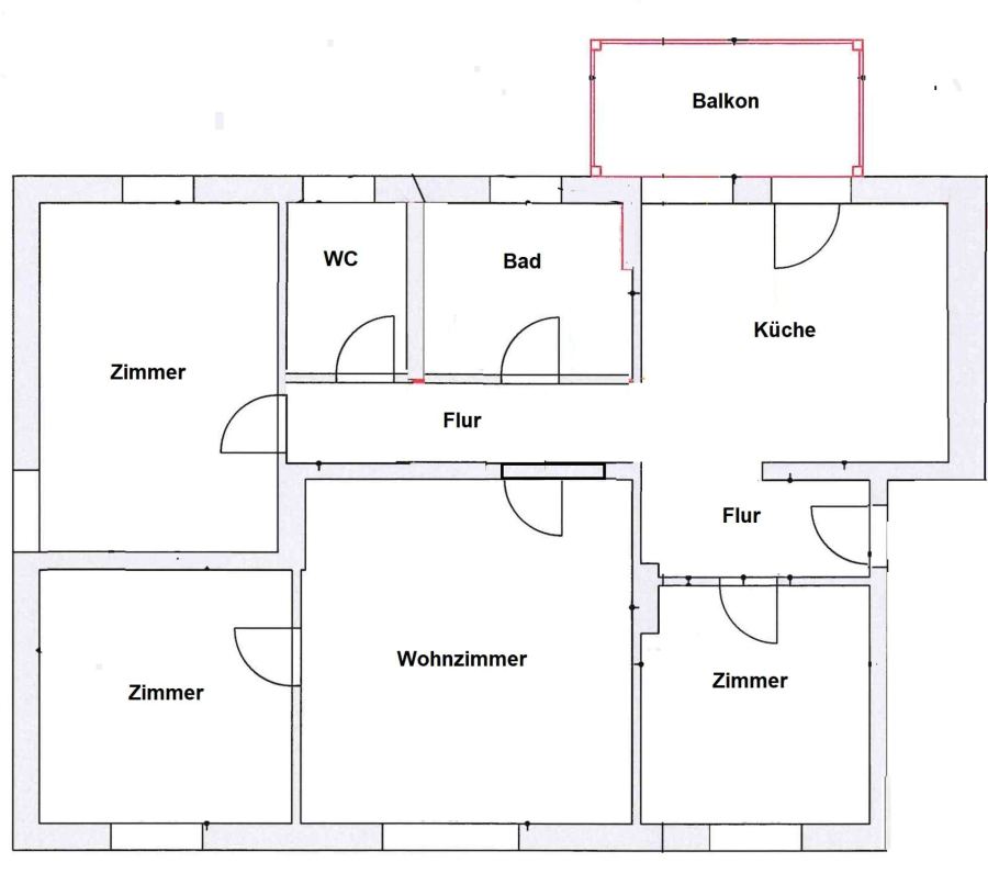
Es werden hier moderne, sehr großzügige 4-Zimmer-Wohnungen geschaffen, die über einen Balkon, ein Bad mit Wanne und Dusche, ein separates WC und einen Stellplatz verfügen.
Ausstattung
große Küche mit Ausgang zum Balkon
Bad mit WC, Wanne, Dusche, Fenster
große Gästetoilette mit WM-Anschluss
Balkon
Stellplatz
Trockenboden
Kunststoffböden in Holzoptik
Lage
Das Haus Gaußstr. 4 liegt zentral in der Gartenstadt Leuna. Von hier aus erreichen Sie innerhalb weniger Gehminuten alle wichtigen Einrichtungen des täglichen Lebens. Auch die nächste Straßenbahnhaltestelle ist nur ein paar Schritte entfernt.
Die Position der Immobilie auf Google Maps ansehen (Link auf externe Website)

















